Est. Monthly
$6,162/mo
249 Shore Road, Cuba, NY
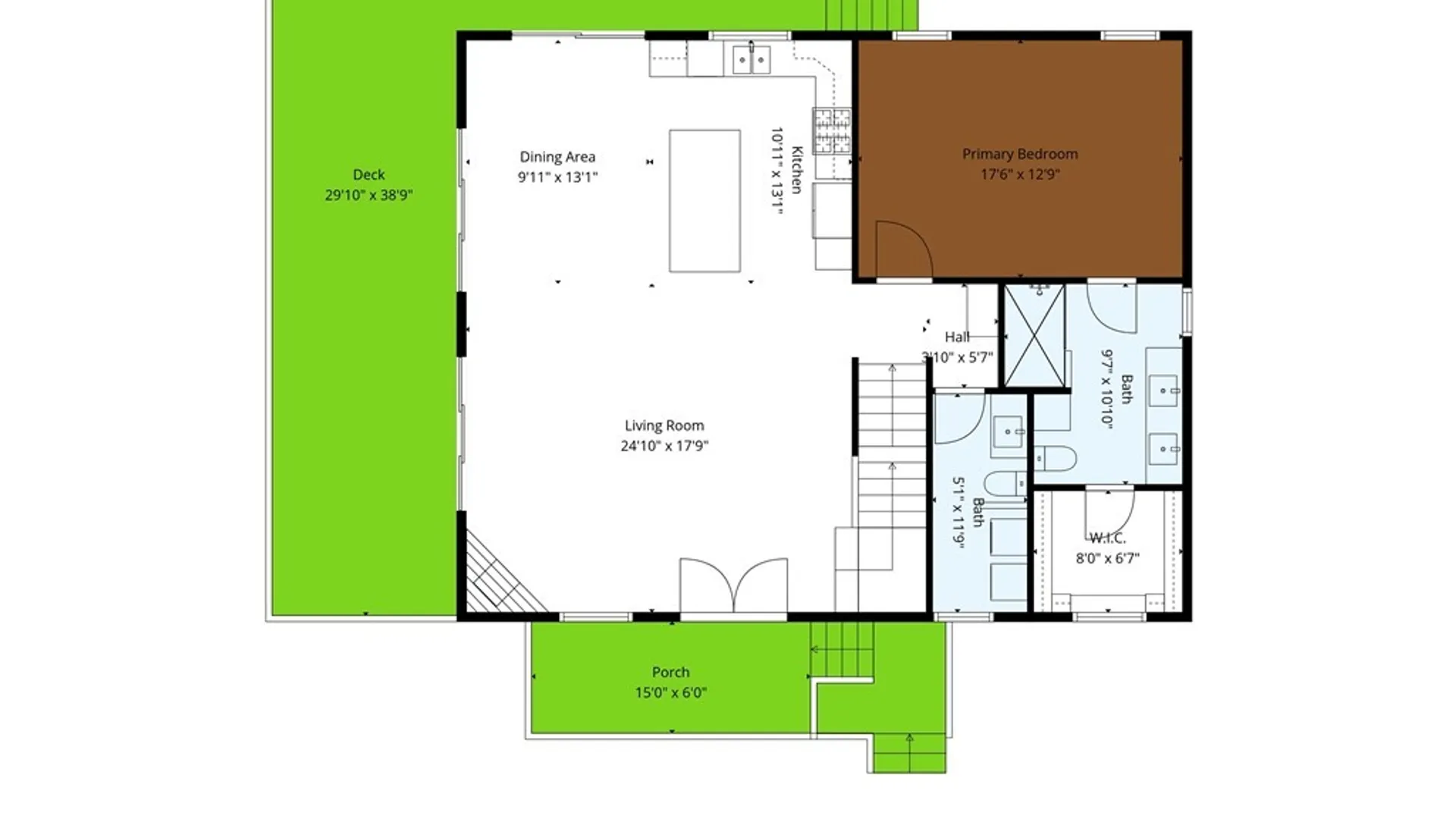
Luxury Turn-Key Lakefront Retreat with Modern Elegance Welcome to this stunning fully furnished, turn-key lakefront residence offering breathtaking views, exceptional craftsmanship, and high-end finishes throughout. Designed to maximize natural light and the beauty of the waterfront, this remarkable home features soaring ceilings and a dramatic wall of windows that frame panoramic water views and flood the living spaces with sunlight. Step inside to discover a bright open-concept layout highlighted by granite countertops, sleek glass backsplashes, and premium finishes that blend modern sophistication with comfortable living. The kitchen flows seamlessly into the main living and dining areas, making it ideal for entertaining while enjoying the picturesque lake backdrop. This home is being offered fully furnished and turn-key, allowing the next owner to move in immediately or begin enjoying it as a vacation retreat without lifting a finger. Outdoor living is just as impressive. Beautiful concrete paver walkways guide you through the landscaped grounds to a relaxing fire pit area, perfect for gathering with family and friends under the stars. The property also features a brand-new dock, ideal for boating, swimming, and waterfront enjoyment. A new natural stone retaining wall enhances both the shoreline’s durability and the home’s curb appeal. Additional Highlights: Turn-key fully furnished home Soaring ceilings and expansive wall of windows Granite countertops and glass backsplashes Central air conditioning Backup generator for peace of mind detached two-car garage Additional Off-street parking Beautifully designed outdoor living spaces A rare opportunity to own a move-in ready lakefront home combining luxury, comfort, and unforgettable views. Listings contains AI computer enhanced photography
Est. Monthly Payment
$6,161.97
Private Mortgage Insurance
Not required
Private Mortgage Insurance
You might also be interested in