Est. Monthly
$1,777/mo
557 Thompson Boulevard, Watertown City, NY
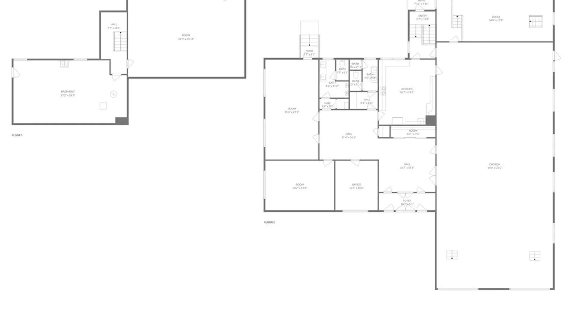
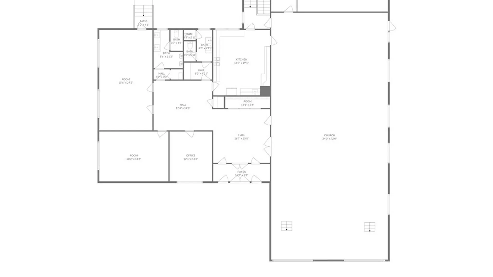
Outstanding opportunity in an exceptional location! This well-maintained brick building at 557 Thompson Boulevard is currently set up and used as a Jewish Synagogue and offers endless potential for continued use as a place of worship, a community facility, or future redevelopment. Sitting on a beautiful 1.94-acre lot right at the base of Watertown’s beloved Thompson Park, this property combines space, functionality, and location perfectly. Over 5249 square feet of space, calculated on a recent floor plan scan. Constructed of solid brick, this building is incredibly sturdy and built to last, showcasing quality craftsmanship throughout. Inside, you’ll find a large main sanctuary with a raised platform stage that can be divided into two separate spaces if desired. The sanctuary’s backdrop has been beautifully refinished with reworked wood detailing and resealed central glass. The structure has been thoughtfully planned and engineered, featuring an organized and efficient layout that suits a variety of uses. Key updates and features include modernized electrical throughout (updated 2 years ago), upgraded doors, and a roof enhanced and redone approximately 10 years ago. The property also includes an industrial-grade kitchen on the main floor with an extra-large refrigerator, double sink basin, commercial gas range with hood, and generous counter space — perfect for large gatherings and events. Additional features include two large offices, two spacious classrooms, and two bathrooms each with multiple stalls and sinks. The building is heated by a steam boiler system that is serviced four times per year, and multiple sump pumps are installed for added peace of mind. This is a truly special property in a prime location — well-cared-for, thoughtfully updated, and ready for its next chapter.
Est. Monthly Payment
$1,777.49
Private Mortgage Insurance
Not required
Private Mortgage Insurance
You might also be interested in