HOMESFARMSANDLAND
BuySell
    • Featured Properties
    • Property Showcases
    • Latest Blogs
      • Overview
      • Explore Open Houses
      • Discover Rental Living
      • Escape to Cabin Life
      • Unlock Multi-Family Living
      • Your Perfect Land Awaits
      • Embrace Farm Life
      • Overview
      • Find Rentals
      • Find Cabins
      • Browse Homes
      • Browse Farms
      • Browse Lands
    • Saved Properties
    • Overview
    • Buying Form
    • Buying Process
    • Mortgage Calculator
    • Overview
    • Selling Form
    • Selling Process
    • Free Home Evaluation
      • All of Otsego
      • Cooperstown
      • Oneonta
      • West Oneonta
      • Milford
      • Hartwick
      • Worcester
      • Unadilla
      • Laurens
      • Richfield Springs
      • All of Schoharie
      • Cobleskill
      • Middleburgh
      • Schoharie
      • Sharon Springs
      • Summit
      • Richmondville
      • Esperance
      • All of Chenango
      • Norwich
      • Oxford
      • Greene
      • Bainbridge
      • Sherburne
      • All of Delaware
      • Delhi
      • Stamford
      • Andes
      • Walton
      • Margaretville
      • Roxbury
      • Sidney
      • All of Greene
      • Catskill
      • Windham
      • Hunter
      • Cairo
      • Coxsackie
      • Athens
      • All of Broome
      • Binghamton
      • Vestal
      • Endicott
      • All of Oneida
      • New Hartford
      • Utica
      • Marcy
      • Clinton
      • All of Montgomery
      • Amsterdam
      • Fort Plain
      • Canajoharie
      • Fonda
      • All of Ulster
      • Kingston
      • New Paltz
      • Saugerties
      • Woodstock
      • Marlborough
    • Overview
    • Free Vendor List
    • Practical Guides
    • Need Funding?
    • Property Inspector
    • Down Payment Eligibility
    • Location Sharing?
      • Overview
      • Standard Operating Procedure
      • NYS Buyer-Seller
      • NYS Landlord-Tenant
      • Tenant Rights Notice
      • Fair Housing Notice
      • Privacy Policy
      • Location Services
      • Properties Preferences
      • Map Data Attribution
    • Who We Are
    • Meet the Team
Featured
Featured Properties
Property Showcases
Latest Blogs
Search
Advanced Search
Explore Open Houses
Discover Rental Living
Escape to Cabin Life
Unlock Multi-Family Living
Your Perfect Land Awaits
Embrace Farm Life
Search by Map
Find Rentals
Find Cabins
Browse Homes
Browse Farms
Browse Lands
Saved Properties
Buy
Buying Form
Buying Process
Mortgage Calculator
Sell
Selling Form
Selling Process
Free Home Evaluation
HOMESFARMSANDLAND
  • Otsego
  • Schoharie
  • Chenango
  • Delaware
  • Greene
  • Broome
  • Oneida
  • Montgomery
  • Ulster

Select a county to see cities

Resources
Free Vendor List
Practical Guides
Need Funding?
Property Inspector
Down Payment Eligibility
Location Sharing?
Disclosures
Standard Operating Procedure
NYS Buyer-Seller
NYS Landlord-Tenant
Tenant Rights Notice
Fair Housing Notice
Privacy Policy
Location Services
Properties Preferences
Map Data Attribution
About
Who We Are
Meet the Team

HOMESFARMSANDLAND.COM

Kevin Lucero

Lic Real Estate Salesperson

a Charlotteville Realty Team

Independently Owned & Operated

607-282-6242kevin@homesfarmsandland.com

Buying

  • Buying Form
  • Buying Process
  • Mortgage Calculator

Selling

  • Selling Form
  • Selling Process
  • Free Home Evaluation

Layout spacer

    Layout spacer

      About Us

      • Who We are
      • Meet the Team

      Resources

      • Latest Blogs
      • Free Vendor List
      • PracticalGuides
      • Need Funding?
      • Property Inspector
      • Down Payment Eligibility

      Communities

      • Otsego County
      • Schoharie County
      • Chenango County
      • Delaware County
      • Greene County
      • Broome County
      • Oneida County
      • Montgomery County
      • Ulster County

      Disclosures

      • Standard Operating Procedure
      • NYS Buyer-Seller
      • NYS Landlord-Tenant
      • Tenant Rights Notice
      • Fair Housing Notice
      • Privacy Policy
      • Location Services
      • Properties Preferences
      • Map Data Attribution

      © 2026 Homes, Farms & Land. All rights reserved.

      Property at 409 Franklin Street, Clayton, NY 13624
      IN ESCROW
      0
      $318,000

      409 Franklin StreetClayton, NY, 13624

      3 Beds1.5 Baths1,450 SqFt0.1152 Acres
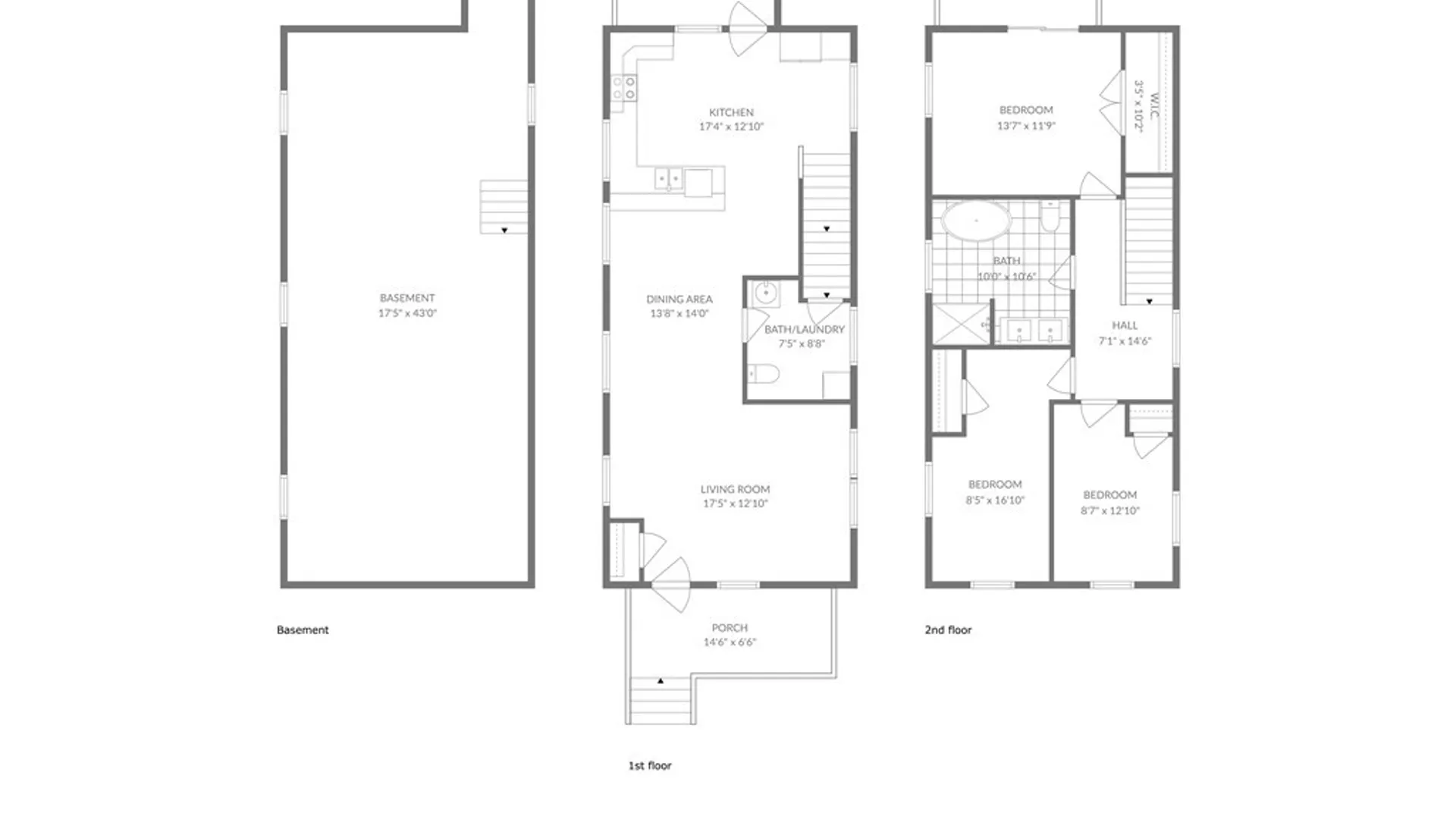
      Enjoy effortless year-round village living in this impeccably maintained 3-bedroom, 1.5 bath home that has been completely renovated in 2010 and thoughtfully updated, offering the comfort and feel of a townhouse without the worry of HOA fees or maintenance restrictions. Ideally located on a quiet street in the Village of Clayton, the property enjoys water views toward Washington Island and is just one block from the Municipal Marina, waterfront parks, shops, and Clayton’s vibrant dining scene. The home features bright open first-floor living, creating an inviting space for everyday living and entertaining. Radiant heated floors add exceptional comfort throughout the main living areas, providing cozy warmth during the cooler months. The kitchen opens to a charming back porch, perfect for summer dining or relaxing outdoors. A convenient first-floor laundry and full basement offer excellent storage and additional space, with a walk-out providing easy access for seasonal gear and storage. Upstairs, the primary bedroom features a private balcony—an ideal spot for morning coffee while enjoying peaceful views of the St. Lawrence River. The welcoming front porch adds classic village charm, while the private fenced yard provides a rare outdoor retreat in the heart of Clayton. Combining low-maintenance living, radiant comfort, river views, and walkable access to the marina and village amenities, this beautifully cared-for Clayton home offers a lifestyle that is increasingly hard to find at this price point.
      1 / 28

      Est. Monthly

      $1,507/mo

      $318,000

      409 Franklin Street, Clayton, NY

      3 Beds1.5 Baths1,450 SqFt0.1152 Acres

      Enjoy effortless year-round village living in this impeccably maintained 3-bedroom, 1.5 bath home that has been completely renovated in 2010 and thoughtfully updated, offering the comfort and feel of a townhouse without the worry of HOA fees or maintenance restrictions. Ideally located on a quiet street in the Village of Clayton, the property enjoys water views toward Washington Island and is just one block from the Municipal Marina, waterfront parks, shops, and Clayton’s vibrant dining scene. The home features bright open first-floor living, creating an inviting space for everyday living and entertaining. Radiant heated floors add exceptional comfort throughout the main living areas, providing cozy warmth during the cooler months. The kitchen opens to a charming back porch, perfect for summer dining or relaxing outdoors. A convenient first-floor laundry and full basement offer excellent storage and additional space, with a walk-out providing easy access for seasonal gear and storage. Upstairs, the primary bedroom features a private balcony—an ideal spot for morning coffee while enjoying peaceful views of the St. Lawrence River. The welcoming front porch adds classic village charm, while the private fenced yard provides a rare outdoor retreat in the heart of Clayton. Combining low-maintenance living, radiant comfort, river views, and walkable access to the marina and village amenities, this beautifully cared-for Clayton home offers a lifestyle that is increasingly hard to find at this price point.

      StatusIn Escrow
      Property TypeResidential
      Property SubtypeSingle Family Residence
      Year Built1850
      Total Rooms6 rooms
      Days on Market68 days

      Est. Monthly Payment

      $1,507.31

      %
      %
      yr

      Private Mortgage Insurance

      Not required

      Affordability Checkoptional
      $

      Enter your annual income to check affordability

      Property Details

      Property Information

      409 Franklin Street

      Clayton, NY 13624 • Jefferson
      3
      Beds
      1.5
      Baths
      1,450
      SqFt
      0.1152
      Acres
      Status
      In Escrow
      Property Type
      Residential
      Property Subtype
      Single Family Residence
      Year Built
      1850176 years ago
      Total Rooms
      6 rooms
      Days on Market
      68 days
      Tax History
      Estimated values, may not reflect current amounts.
      • Annual Tax Amount
        $5,154
      Property History
      • Listed for sale
        Mar 12, 2026 • NYSAMLS • S1665449
        $318,000
      Mortgage Calculator
      Estimated monthly payment for this property
      $1,507.31
      Down Payment
      Interest Rate
      Loan Term
      %
      %
      yearsyrs.
      Affordability Checkoptional
      $

      Enter your annual income to see if this home fits your budget

      Private Mortgage Insurance

      Not required — down payment above 20%
      MLS Information
      • Source
        NYSAMLS
      • MLS#
        S1665449
      • Listing Office
        Four Seasons Sotheby's Inter.
      • Last Updated
        34 days ago

      Appliances

      • Appliances
        • Dryer
        • Dishwasher
        • Electric Oven
        • Electric Range
        • Microwave
        • Propane Water Heater
        • Refrigerator
        • Washer

      Climate & Systems

      • Heating
        • Propane
        • Zoned
        • Radiant

      Interior Features

      • Flooring
        • Carpet
        • Hardwood
        • Tile
        • Varies
      • Basement
        • Exterior Entry
        • Full
        • Walk Up Access
        • Walk Out Access
      • Windows
        Drapes
      • Interior Features
        • Breakfast Bar
        • Ceiling Fans
        • Eat In Kitchen
        • Separate Formal Living Room
        • Living Dining Room
        • Window Treatments

      Parking

      • Parking Features
        No Garage

      Lot & Grounds

      • Lot Size
        0.1152 acres
      • Lot Features
        • Rectangular
        • Rectangular Lot
        • Residential Lot
      • View
        Water
      • Fencing
        Full
      • Patio & Porch
        • Balcony
        • Covered
        • Open
        • Porch
      • Exterior Features
        • Blacktop Driveway
        • Balcony
        • Fully Fenced
        • Propane Tank Leased

      Type

      • Property Type
        Residential
      • Property Subtype
        Single Family Residence
      • Architectural Style
        • Two Story
        • Traditional

      Structure

      • Construction
        Vinyl Siding
      • Foundation
        Block

      Condition

      • Year Built
        1850
      • Condition
        Resale
      • Days on Market
        68 days
      • Water
        Connected
      • Sewer
        Connected
      • Utilities
        • Cable Available
        • High Speed Internet Available
        • Sewer Connected
        • Water Connected

      607-282-6242, (607) 282-6242, or +1 607 282 6242

      Kevin Lucero

      Kevin Lucero

      Lic. Real Estate Salesperson

      CallEmail
      Picked for you

      Similar Properties

      Handpicked listings that match what you're looking at

      View all →
      • 21 1/2 North Street, Hudson Falls, NY 12839ACTIVE$287,500

        21 1/2 North Street, Hudson Falls, NY 12839

        2 Beds2 Baths1,288 SqFt0.13 Acres

        LISTING BY COLDWELL BANKER PRIME PROPERTIES

      • 156 Hardscrabble Road, Chester, NY 12853ACTIVE$288,000

        156 Hardscrabble Road, Chester, NY 12853

        4 Beds1.5 Baths1,415 SqFt1.57 Acres

        LISTING BY JULIE & CO REALTY LLC

      • 3801 Sowles Road, Hamburg, NY 14075ACTIVE$289,000

        3801 Sowles Road, Hamburg, NY 14075

        3 Beds1 Bath1,224 SqFt0.1842 Acres

        LISTING BY HUNT REAL ESTATE CORPORATION

      • 3845 Houck Road, Vernon, NY 13476ACTIVE$289,000

        3845 Houck Road, Vernon, NY 13476

        3 Beds2 Baths1,862 SqFt0.4205 Acres

        LISTING BY HOWARD HANNA CNY INC

      • 4450 State Route 364, Gorham, NY 14424ACTIVE$289,000

        4450 State Route 364, Gorham, NY 14424

        3 Beds2 Baths1,456 SqFt0.4522 Acres

        LISTING BY LAKE TO LAKE REAL ESTATE

      • 6835 Mead Hill Road, Springwater, NY 14572ACTIVE$289,000

        6835 Mead Hill Road, Springwater, NY 14572

        3 Beds2.5 Baths1,828 SqFt1.8 Acres

        LISTING BY CASSARA REALTY GROUP

      • 335 Capitol, Holland, NY 14080ACTIVE$289,000

        335 Capitol, Holland, NY 14080

        3 Beds1 Bath1,120 SqFt1.37 Acres

        LISTING BY WNY METRO ROBERTS REALTY

      • 207 Springfield Avenue, Tonawanda, NY 14150ACTIVE$289,000

        207 Springfield Avenue, Tonawanda, NY 14150

        3 Beds1 Bath1,674 SqFt0.1135 Acres

        LISTING BY KELLER WILLIAMS REALTY WNY

      • 104 Chapel Glen Drive, Hamburg, NY 14075ACTIVE$289,000

        104 Chapel Glen Drive, Hamburg, NY 14075

        3 Beds1.5 Baths1,312 SqFt0.1722 Acres

        LISTING BY WNY METRO ROBERTS REALTY

      • 4588 County Route 22, Sandy Creek, NY 13083ACTIVE$289,000

        4588 County Route 22, Sandy Creek, NY 13083

        3 Beds1.5 Baths1,392 SqFt1 Acres

        LISTING BY BERKSHIRE HATHAWAY HOME SERVICES CNY REALTY WATN