Est. Monthly
$2,697/mo
851 Lower Meeker Hollow Road, Roxbury, NY
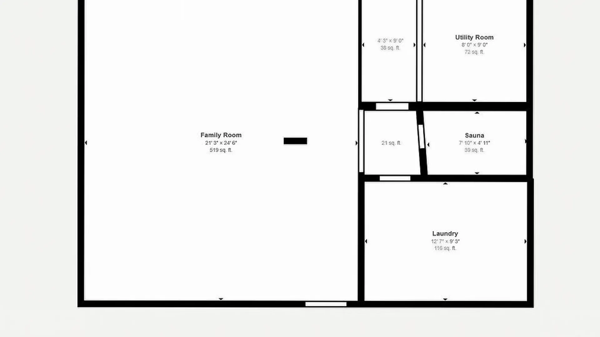
Rustic charm meets modern luxury in this impeccably maintained hand-peeled log home, just minutes from Plattekill and Belleayre. Set on over 6 private, beautifully landscaped acres, you'll enjoy sweeping mountain views from two covered decks. Inside, the great room features soaring ceilings, skylights, and a stunning floor-to-ceiling stone fireplace. The large sleeping loft includes a soaking tub and full bath for a spa-like retreat. The fully finished walk-out lower level offers a sauna and a pellet stove, and access to the lower deck. A detached 2-car log garage provides great storage. Behind the home, a footpath leads to a peaceful hideaway with a seasonal stream, fire pit, yoga platform, gardens, storage shed, and a small pond. Whether you're looking for a full-time mountain escape or an exceptional short-term rental, this turn-key home is a true gem—close to farm markets, dining, and the villages of Roxbury and Margaretville.
Est. Monthly Payment
$2,697.05
Private Mortgage Insurance
Not required
Private Mortgage Insurance
You might also be interested in