Est. Monthly
$1,777/mo
8026 Pickett Lane, Cicero, NY
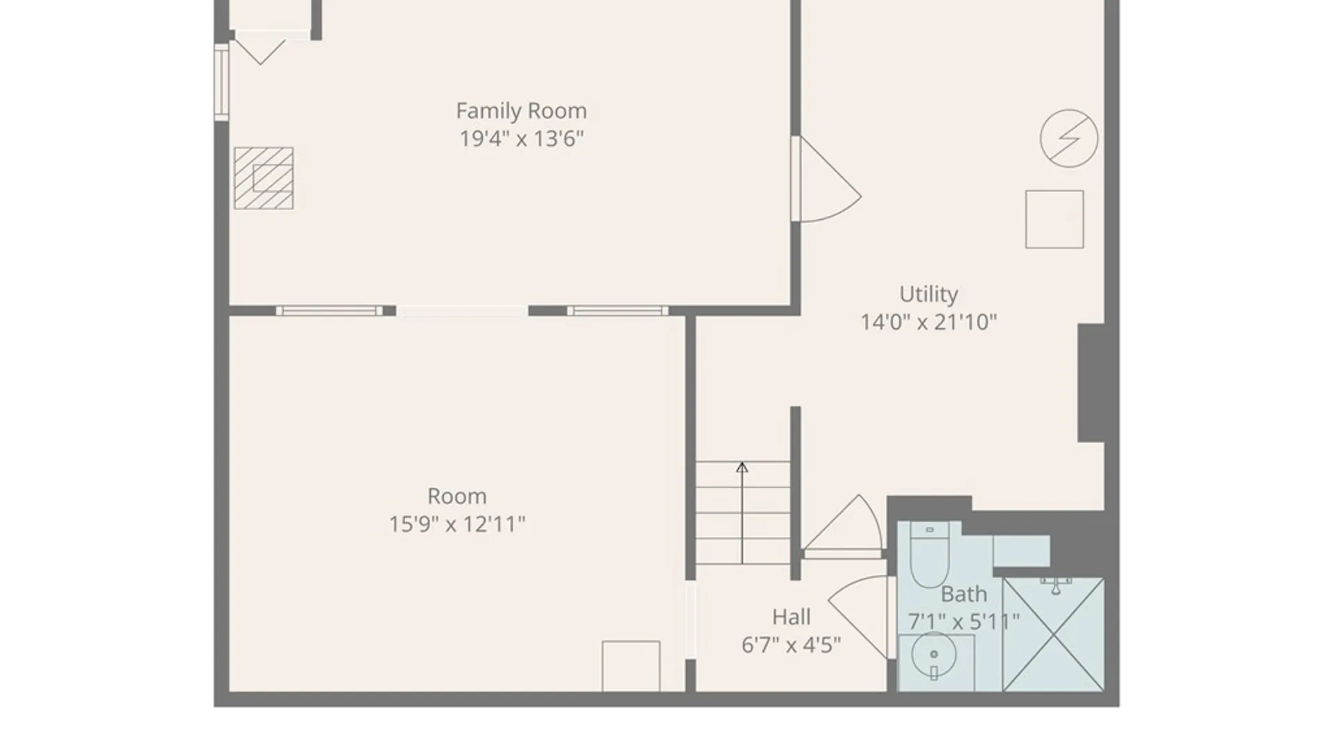
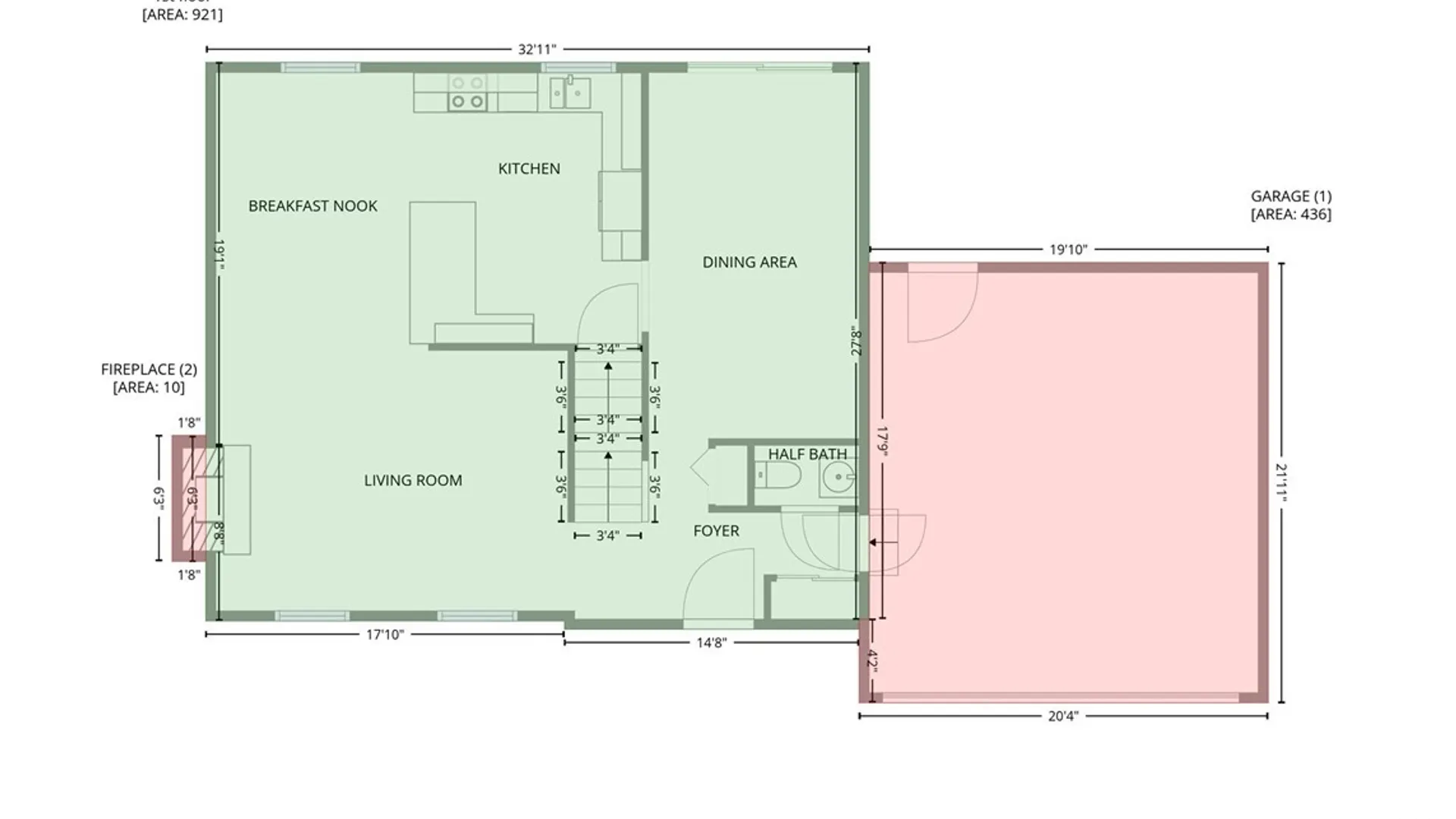
Stunning 4 bedrooms, 3.5 baths colonial in Darby Farm. Wait till you see this breath-taking home with new and improved upgrades: new roof, siding, most new windows, new furnace, new hot water heater, new kitchen w/new cabinetry, new granite countertops, new kitchen appliances, new floorings throughout, new carpet, 2.5 new bathrooms, all new light fixtures, freshly painted throughout the entire house. New garage door. It is absolutely gorgeous! It shows like a model home with all the modern amenities updates. Basement is finished w/full bath, living area for sitting room and possible overnight guests. There is a washer & dryer hook up area. This beautiful home has everything done and nothing to do but move-in and enjoy with your family. House is conveniently located near schools, stores and highway. Less than 10 miles from the future Micron Technology Park.
Est. Monthly Payment
$1,777.49
Private Mortgage Insurance
Not required
Private Mortgage Insurance
You might also be interested in