Est. Monthly
$1,185/mo
8 Passage, Perinton, NY
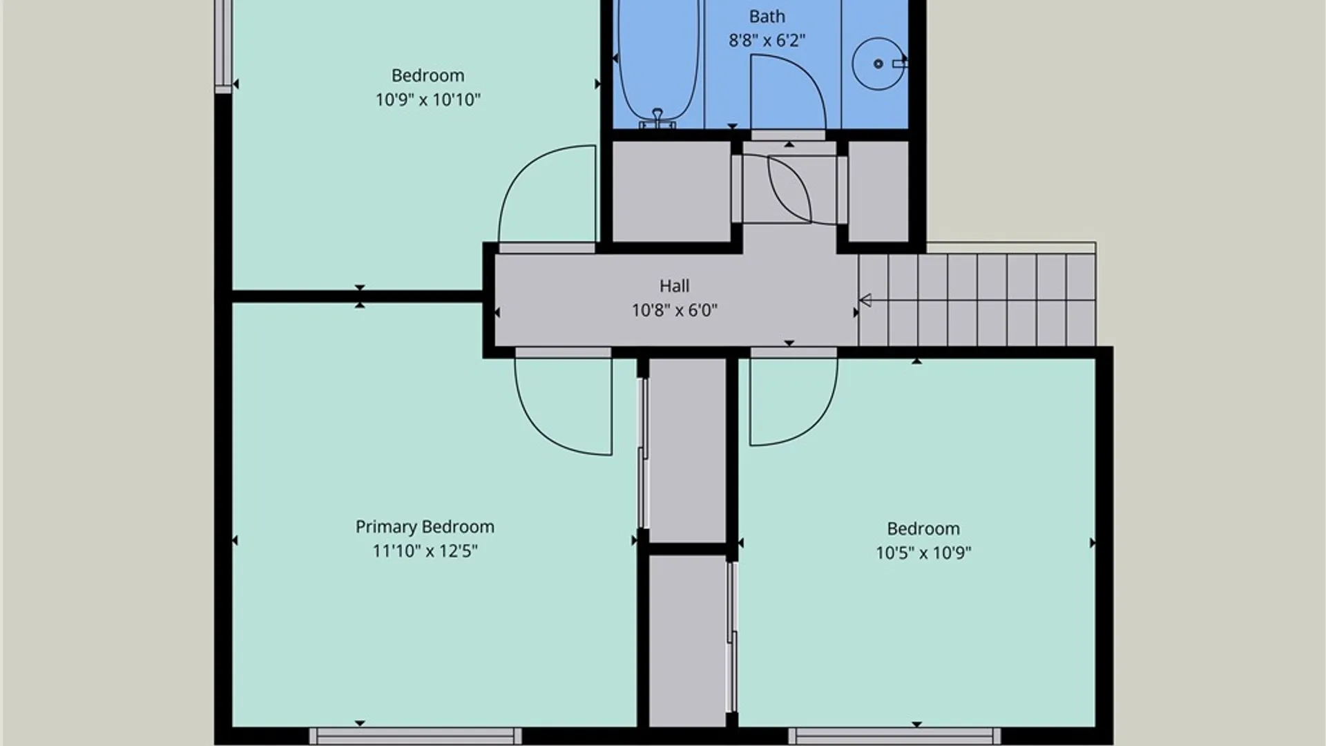
This charming center-split home in Fairport, NY blends inviting living space with thoughtful updates throughout. The main level features an eat-in kitchen with Euro-style cabinetry, a formal dining area, and a welcoming living room highlighted by hardwood floors. First-floor laundry adds everyday convenience. The finished lower level offers a comfortable family room centered around a warm fireplace, creating the perfect space to relax or gather, along with a powder room and sliding doors leading to the patio and backyard—ideal for entertaining or enjoying outdoor living. Upstairs, you’ll find three spacious bedrooms and a full bath, offering comfortable accommodations with opportunities to further enhance to your personal style. Recent improvements include newer windows and doors, updated HVAC system & hot water tank. Washer, Dryer, Refrigerator are newer(2025). Dishwasher (2024) .Set on a pleasant lot, this home offers a great combination of space, updates, and future potential—all in a desirable Fairport location. Delayed Neg. are on file. Offers will be reviewed Monday 4.27.26
Est. Monthly Payment
$1,184.52
Private Mortgage Insurance
Not required
Private Mortgage Insurance
You might also be interested in