Est. Monthly
$1,185/mo
263 Somershire Drive, Irondequoit, NY
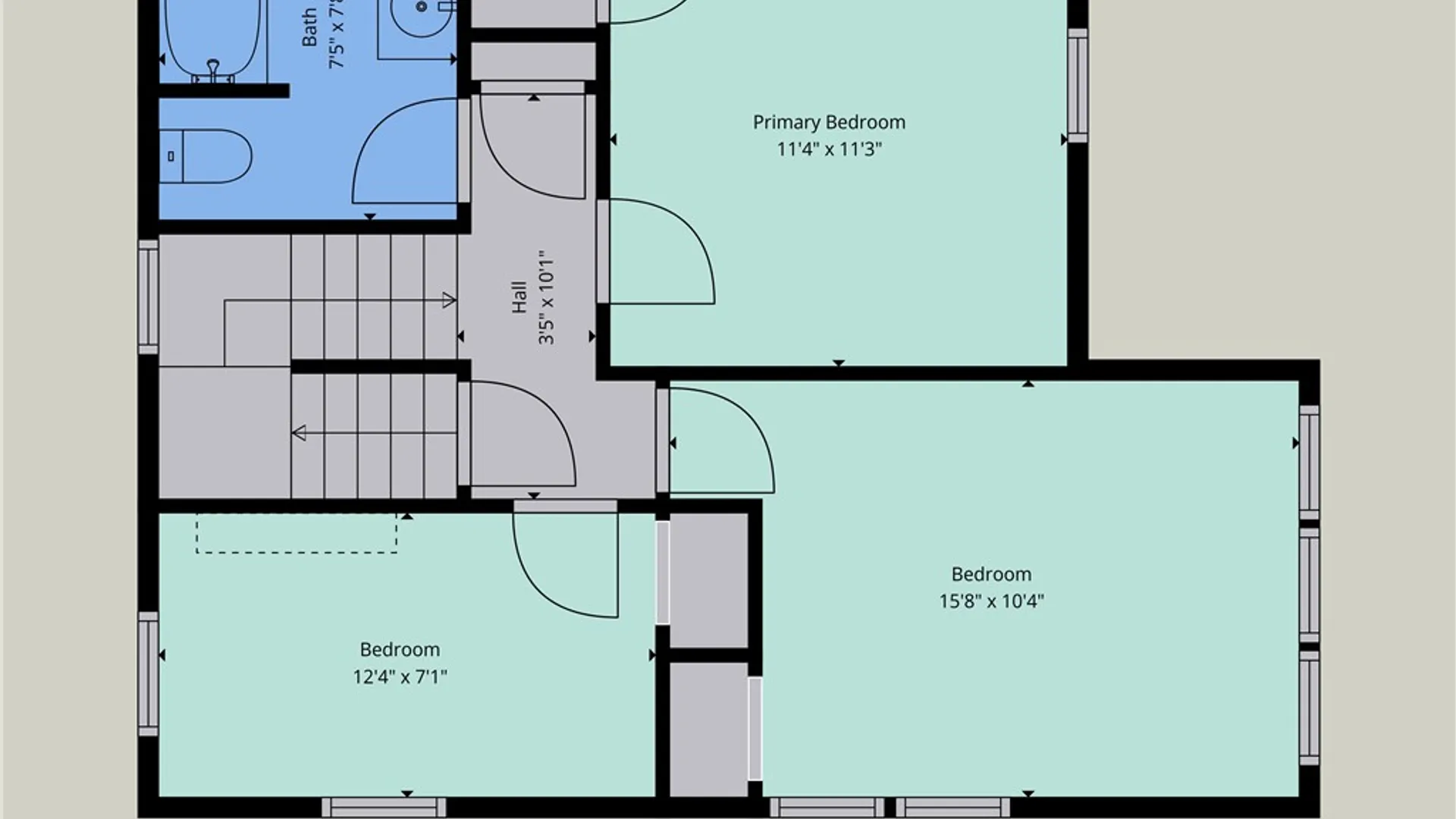
Classic Irondequoit Colonial blending timeless charm with thoughtful updates! Featuring original gumwood trim and original hardwood floors throughout, this spacious home offers 5 bedrooms, (or 3 or 4 beds with possible office- or flex space)- 2 full baths, —ideal for today’s flexible lifestyle. The well-maintained kitchen flows into a formal dining room perfect for daily living or entertaining, while the expansive living room is filled with natural light and offers plenty of space for gatherings. Enjoy outdoor living the newer deck overlooking the fully fenced 6-foot privacy backyard—perfect for kids, pets, and play. Updates include 3 newer exterior doors, newer garage door, vinyl windows, updated kitchen and baths, and newer deck (2021), and located within a "Green Light" district. This home is just minutes to I-Square, Seneca Park Zoo, Seabreeze, Durand-Eastman Park, and the beach. Sidewalks and streetlights complete the picture in this charming neighborhood, with schools K–12 within walking distance. A wonderful opportunity to own a true Irondequoit classic! microwave and washing machine are not included in the sale.
Est. Monthly Payment
$1,184.52
Private Mortgage Insurance
Not required
Private Mortgage Insurance
You might also be interested in