HOMESFARMSANDLAND
BuySell
    • Featured Properties
    • Property Showcases
    • Latest Blogs
      • Overview
      • Explore Open Houses
      • Discover Rental Living
      • Escape to Cabin Life
      • Unlock Multi-Family Living
      • Your Perfect Land Awaits
      • Embrace Farm Life
      • Overview
      • Find Rentals
      • Find Cabins
      • Browse Homes
      • Browse Farms
      • Browse Lands
    • Saved Properties
    • Overview
    • Buying Form
    • Buying Process
    • Mortgage Calculator
    • Overview
    • Selling Form
    • Selling Process
    • Free Home Evaluation
      • All of Otsego
      • Cooperstown
      • Oneonta
      • West Oneonta
      • Milford
      • Hartwick
      • Worcester
      • Unadilla
      • Laurens
      • Richfield Springs
      • All of Schoharie
      • Cobleskill
      • Middleburgh
      • Schoharie
      • Sharon Springs
      • Summit
      • Richmondville
      • Esperance
      • All of Chenango
      • Norwich
      • Oxford
      • Greene
      • Bainbridge
      • Sherburne
      • All of Delaware
      • Delhi
      • Stamford
      • Andes
      • Walton
      • Margaretville
      • Roxbury
      • Sidney
      • All of Greene
      • Catskill
      • Windham
      • Hunter
      • Cairo
      • Coxsackie
      • Athens
      • All of Broome
      • Binghamton
      • Vestal
      • Endicott
      • All of Oneida
      • New Hartford
      • Utica
      • Marcy
      • Clinton
      • All of Montgomery
      • Amsterdam
      • Fort Plain
      • Canajoharie
      • Fonda
      • All of Ulster
      • Kingston
      • New Paltz
      • Saugerties
      • Woodstock
      • Marlborough
    • Overview
    • Free Vendor List
    • Practical Guides
    • Need Funding?
    • Property Inspector
    • Down Payment Eligibility
    • Location Sharing?
      • Overview
      • Standard Operating Procedure
      • NYS Buyer-Seller
      • NYS Landlord-Tenant
      • Tenant Rights Notice
      • Fair Housing Notice
      • Privacy Policy
      • Location Services
      • Properties Preferences
      • Map Data Attribution
    • Who We Are
    • Meet the Team
Featured
Featured Properties
Property Showcases
Latest Blogs
Search
Advanced Search
Explore Open Houses
Discover Rental Living
Escape to Cabin Life
Unlock Multi-Family Living
Your Perfect Land Awaits
Embrace Farm Life
Search by Map
Find Rentals
Find Cabins
Browse Homes
Browse Farms
Browse Lands
Saved Properties
Buy
Buying Form
Buying Process
Mortgage Calculator
Sell
Selling Form
Selling Process
Free Home Evaluation
HOMESFARMSANDLAND
  • Otsego
  • Schoharie
  • Chenango
  • Delaware
  • Greene
  • Broome
  • Oneida
  • Montgomery
  • Ulster

Select a county to see cities

Resources
Free Vendor List
Practical Guides
Need Funding?
Property Inspector
Down Payment Eligibility
Location Sharing?
Disclosures
Standard Operating Procedure
NYS Buyer-Seller
NYS Landlord-Tenant
Tenant Rights Notice
Fair Housing Notice
Privacy Policy
Location Services
Properties Preferences
Map Data Attribution
About
Who We Are
Meet the Team

HOMESFARMSANDLAND.COM

Kevin Lucero

Lic Real Estate Salesperson

a Charlotteville Realty Team

Independently Owned & Operated

607-282-6242kevin@homesfarmsandland.com

Buying

  • Buying Form
  • Buying Process
  • Mortgage Calculator

Selling

  • Selling Form
  • Selling Process
  • Free Home Evaluation

Layout spacer

    Layout spacer

      About Us

      • Who We are
      • Meet the Team

      Resources

      • Latest Blogs
      • Free Vendor List
      • PracticalGuides
      • Need Funding?
      • Property Inspector
      • Down Payment Eligibility

      Communities

      • Otsego County
      • Schoharie County
      • Chenango County
      • Delaware County
      • Greene County
      • Broome County
      • Oneida County
      • Montgomery County
      • Ulster County

      Disclosures

      • Standard Operating Procedure
      • NYS Buyer-Seller
      • NYS Landlord-Tenant
      • Tenant Rights Notice
      • Fair Housing Notice
      • Privacy Policy
      • Location Services
      • Properties Preferences
      • Map Data Attribution

      © 2026 Homes, Farms & Land. All rights reserved.

      Property at 2 Lakeside Circle, Elma, NY 14059
      ACTIVE
      0
      $584,900

      2 Lakeside CircleElma, NY, 14059

      3 Beds3 Baths2,207 SqFt0.19 Acres
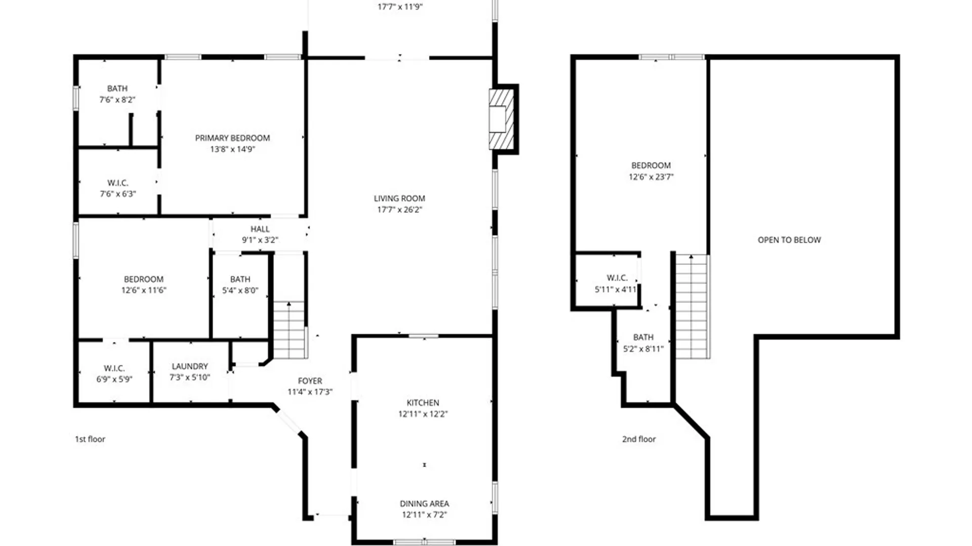
      Welcome to this beautifully crafted, open-concept Marrano home is ideally positioned on a premium corner lot, featuring a rare combination of privacy, lake views, and low-maintenance luxury. From the moment you step inside, soaring cathedral ceilings and rich hardwood flooring create a bright, airy ambiance designed for both elegant entertaining and comfortable everyday living. The expansive living and dining room combination is anchored by a warm gas fireplace, creating a sophisticated yet inviting focal point. Just beyond, a heated Sunroom filled with natural light offers peaceful lake views. The spacious eat-in kitchen is thoughtfully designed with solid surface countertops, abundant cabinetry, pantry storage, and a full appliance package already in place. A convenient first-floor laundry room enhances the ease of single-level living. The primary suite provides a serene retreat, complete with a walk-in closet and private bath featuring a walk-in shower. A second first-floor bedroom also offers a walk-in closet and is complemented by a full bath just off the hallway — ideal for guests or family. Upstairs, a versatile loft with its own walk-in closet and a third full bath with walk-in shower creates flexible space for a guest suite, home office, or additional living quarters. The full basement offers outstanding potential for future finished space and includes additional laundry hookups, a sump pump with water backup, and generous storage capacity. Outdoor living is equally impressive. Relax on the welcoming covered front porch or step out onto the beautifully finished stamped concrete patio enhanced by a Kohler awning, all perfectly positioned to capture tranquil lake views. Additional highlights include a whole-house generator, advanced security system, high-efficiency furnace with electric air cleaner and humidifier, sprinkler system, and windows with built-in blinds. Pride of ownership shines throughout this meticulously maintained one-owner home. The HOA provides a truly low-maintenance lifestyle, covering snow removal including the driveway, grass cutting and lawn maintenance, common area maintenance, trash collection, and sewer for $295 per month.
      1 / 49

      Est. Monthly

      $2,772/mo

      $584,900

      2 Lakeside Circle, Elma, NY

      3 Beds3 Baths2,207 SqFt0.19 Acres

      Welcome to this beautifully crafted, open-concept Marrano home is ideally positioned on a premium corner lot, featuring a rare combination of privacy, lake views, and low-maintenance luxury. From the moment you step inside, soaring cathedral ceilings and rich hardwood flooring create a bright, airy ambiance designed for both elegant entertaining and comfortable everyday living. The expansive living and dining room combination is anchored by a warm gas fireplace, creating a sophisticated yet inviting focal point. Just beyond, a heated Sunroom filled with natural light offers peaceful lake views. The spacious eat-in kitchen is thoughtfully designed with solid surface countertops, abundant cabinetry, pantry storage, and a full appliance package already in place. A convenient first-floor laundry room enhances the ease of single-level living. The primary suite provides a serene retreat, complete with a walk-in closet and private bath featuring a walk-in shower. A second first-floor bedroom also offers a walk-in closet and is complemented by a full bath just off the hallway — ideal for guests or family. Upstairs, a versatile loft with its own walk-in closet and a third full bath with walk-in shower creates flexible space for a guest suite, home office, or additional living quarters. The full basement offers outstanding potential for future finished space and includes additional laundry hookups, a sump pump with water backup, and generous storage capacity. Outdoor living is equally impressive. Relax on the welcoming covered front porch or step out onto the beautifully finished stamped concrete patio enhanced by a Kohler awning, all perfectly positioned to capture tranquil lake views. Additional highlights include a whole-house generator, advanced security system, high-efficiency furnace with electric air cleaner and humidifier, sprinkler system, and windows with built-in blinds. Pride of ownership shines throughout this meticulously maintained one-owner home. The HOA provides a truly low-maintenance lifestyle, covering snow removal including the driveway, grass cutting and lawn maintenance, common area maintenance, trash collection, and sewer for $295 per month.

      StatusActive
      Property TypeResidential
      Property SubtypeSingle Family Residence
      Year Built2006
      Total Rooms9 rooms
      Days on Market43 days

      Est. Monthly Payment

      $2,772.41

      %
      %
      yr

      Private Mortgage Insurance

      Not required

      Affordability Checkoptional
      $

      Enter your annual income to check affordability

      Property Details

      Property Information

      2 Lakeside Circle

      Elma, NY 14059 • Erie
      3
      Beds
      3
      Baths
      2,207
      SqFt
      0.19
      Acres
      Status
      Active
      Property Type
      Residential
      Property Subtype
      Single Family Residence
      Year Built
      200620 years ago
      Total Rooms
      9 rooms
      Days on Market
      43 days
      Tax History
      Estimated values, may not reflect current amounts.
      • Annual Tax Amount
        $10,184
      Property History
      • Listed for sale
        Apr 7, 2026 • NYSAMLS • B1663029
        $584,900
      Mortgage Calculator
      Estimated monthly payment for this property
      $2,772.41
      Down Payment
      Interest Rate
      Loan Term
      %
      %
      yearsyrs.
      Affordability Checkoptional
      $

      Enter your annual income to see if this home fits your budget

      Private Mortgage Insurance

      Not required — down payment above 20%
      MLS Information
      • Source
        NYSAMLS
      • MLS#
        B1663029
      • Listing Office
        WNY Metro Roberts Realty
      • Last Updated
        2 days ago

      Appliances

      • Appliances
        • Dishwasher
        • Exhaust Fan
        • Electric Oven
        • Electric Range
        • Gas Water Heater
        • Microwave
        • Refrigerator
        • Range Hood
        • Humidifier

      Climate & Systems

      • Heating
        • Gas
        • Forced Air

      Interior Features

      • Flooring
        • Hardwood
        • Laminate
        • Varies
      • Doors
        Sliding Doors
      • Basement
        • Full
        • Sump Pump
      • Interior Features
        • Ceiling Fans
        • Cathedral Ceilings
        • Entrance Foyer
        • Eat In Kitchen
        • Separate Formal Living Room
        • Sliding Glass Doors
        • Solid Surface Counters
        • Bedroom On Main Level
        • Loft
        • Bath In Primary Bedroom
        • Main Level Primary
        • Primary Suite

      Parking

      • Parking Features
        • Attached
        • Electricity
        • Garage
        • Driveway
        • Garage Door Opener
      • Garage Spaces
        2

      Lot & Grounds

      • Lot Size
        0.19 acres
      • Lot Features
        • Corner Lot
        • Irregular Lot
      • Patio & Porch
        • Covered
        • Patio
        • Porch
      • Exterior Features
        • Awnings
        • Concrete Driveway
        • Sprinkler Irrigation
        • Patio

      Type

      • Property Type
        Residential
      • Property Subtype
        Single Family Residence
      • Architectural Style
        • Patio Home
        • Two Story

      Structure

      • Construction
        • Stone
        • Vinyl Siding
        • Pex Plumbing
      • Roof
        Asphalt
      • Foundation
        Poured

      Condition

      • Year Built
        2006
      • Condition
        Resale
      • Days on Market
        43 days
      • Water
        Connected
      • Sewer
        Connected
      • Electric
        Circuit Breakers
      • Utilities
        • Cable Available
        • Electricity Connected
        • High Speed Internet Available
        • Sewer Connected
        • Water Connected

      607-282-6242, (607) 282-6242, or +1 607 282 6242

      Kevin Lucero

      Kevin Lucero

      Lic. Real Estate Salesperson

      CallEmail
      Picked for you

      Similar Properties

      Handpicked listings that match what you're looking at

      View all →
      • 3530 Conhocton Road, Erwin, NY 14870ACTIVE$528,000

        3530 Conhocton Road, Erwin, NY 14870

        4 Beds3.5 Baths3,839 SqFt0.36 Acres

        LISTING BY KELLER WILLIAMS REALTY SOUTHERN TIER & FINGER LAKES

      • 568 NYS 355 Cooper Hill Road, Poestenkill, NY 12198ACTIVE$528,125

        568 NYS 355 Cooper Hill Road, Poestenkill, NY 12198

        4 Beds2.5 Baths1,900 SqFt1.5 Acres

        LISTING BY COLDWELL BANKER PRIME PROPERTIES

      • 220 Bronze Leaf Trail, Greece, NY 14612ACTIVE$528,330

        220 Bronze Leaf Trail, Greece, NY 14612

        3 Beds2 Baths1,601 SqFt0.44 Acres

        LISTING BY RE/MAX REALTY GROUP

      • 27228 Keyser Road, Le Ray, NY 13637ACTIVE$529,000

        27228 Keyser Road, Le Ray, NY 13637

        5 Beds3 Baths3,520 SqFt4.37 Acres

        LISTING BY BRIDGEVIEW REAL ESTATE

      • 472 Maplewoods Ln, Webster, NY 14580ACTIVE$529,000

        472 Maplewoods Ln, Webster, NY 14580

        3 Beds2.5 Baths2,906 SqFt0.46 Acres

        LISTING BY HOWARD HANNA

      • 2572 Lakeview Road, Hamburg, NY 14085ACTIVE$529,000

        2572 Lakeview Road, Hamburg, NY 14085

        3 Beds1 Bath1,160 SqFt10.19 Acres

        LISTING BY MLS NATION REALTY LLC

      • 22 Verdi Boulevard, Colonie, NY 12110ACTIVE$529,000

        22 Verdi Boulevard, Colonie, NY 12110

        6 Beds2.5 Baths2,026 SqFt0.28 Acres

        LISTING BY THE PEOPLE'S REAL ESTATE GROUP

      • 1441 Thickett Road, Schodack, NY 12033ACTIVE$529,000

        1441 Thickett Road, Schodack, NY 12033

        3 Beds2 Baths1,500 SqFt0.3 Acres

        LISTING BY GABEL REAL ESTATE

      • 2188 Route 9, Kinderhook, NY 12106ACTIVE$529,000

        2188 Route 9, Kinderhook, NY 12106

        3 Beds2.5 Baths2,360 SqFt0.9 Acres

        LISTING BY SINKOFF REALTY GROUP

      • 3020 Niagara Falls Boulevard, Wheatfield, NY 14120ACTIVE$529,000

        3020 Niagara Falls Boulevard, Wheatfield, NY 14120

        3 Beds1.5 Baths1,405 SqFt0.88 Acres

        LISTING BY HOWARD HANNA WNY INC.