Est. Monthly
$3,171/mo
182 Castlebrooke Lane, Amherst, NY
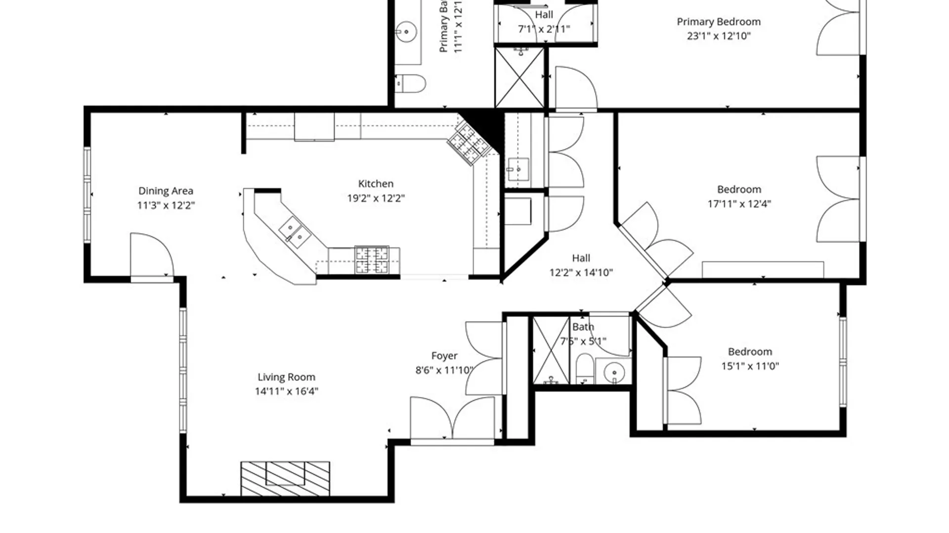
Overlooking Park Country Club, this exceptional condominium is nestled within the exclusive Castlebrooke community of just twelve residences. Manicured grounds, sweeping golf course views, and a heated saltwater pool define refined, maintenance-free living in one of Williamsville’s most desirable enclaves. The main living level of this 3-bedroom, 3-bath residence showcases premium flooring, custom interior doors, elegant 6" molding, and statement lighting throughout. A gas fireplace with custom tile surround anchors the space with warmth and architectural presence. The chef’s kitchen is beautifully appointed with black granite countertops and a redesigned breakfast bar, complemented by a full suite of high-end appliances including Sub-Zero refrigeration, Miele indoor grill, gas range, warming drawer, built-in oven and microwave, and wine cooler, flowing effortlessly into the dedicated dining area. A 3-season room with cascading waterfall offers a serene space for morning coffee while overlooking the golf course. The primary suite features a claw-foot soaking tub, walk-in shower, and his/her walk-in closet, while the guest bath includes a glass shower and granite vanity. The third bedroom is currently styled as a sophisticated office/den, complete with refinished parquet flooring and custom built-ins. Recessed lighting enhances both levels. The finished lower level adds approximately 450 sq ft of equally refined living space, including a private guest suite-style room, kitchenette/bar area, European-style marble full bath, tray ceiling detail, and dedicated split heating and cooling. Dual-zone HVAC and brand-new 2025 central air ensure year-round comfort. Two garage spaces included. 2,152 sq ft above grade per tax records, plus approximately 450 sq ft of finished lower-level living space. Tax records reflect a total building square footage of 2,602 inclusive of the lower level.
Est. Monthly Payment
$3,171.04
Private Mortgage Insurance
Not required
Private Mortgage Insurance
You might also be interested in