Est. Monthly
$2,275/mo
156 Garrison Road, Amherst, NY
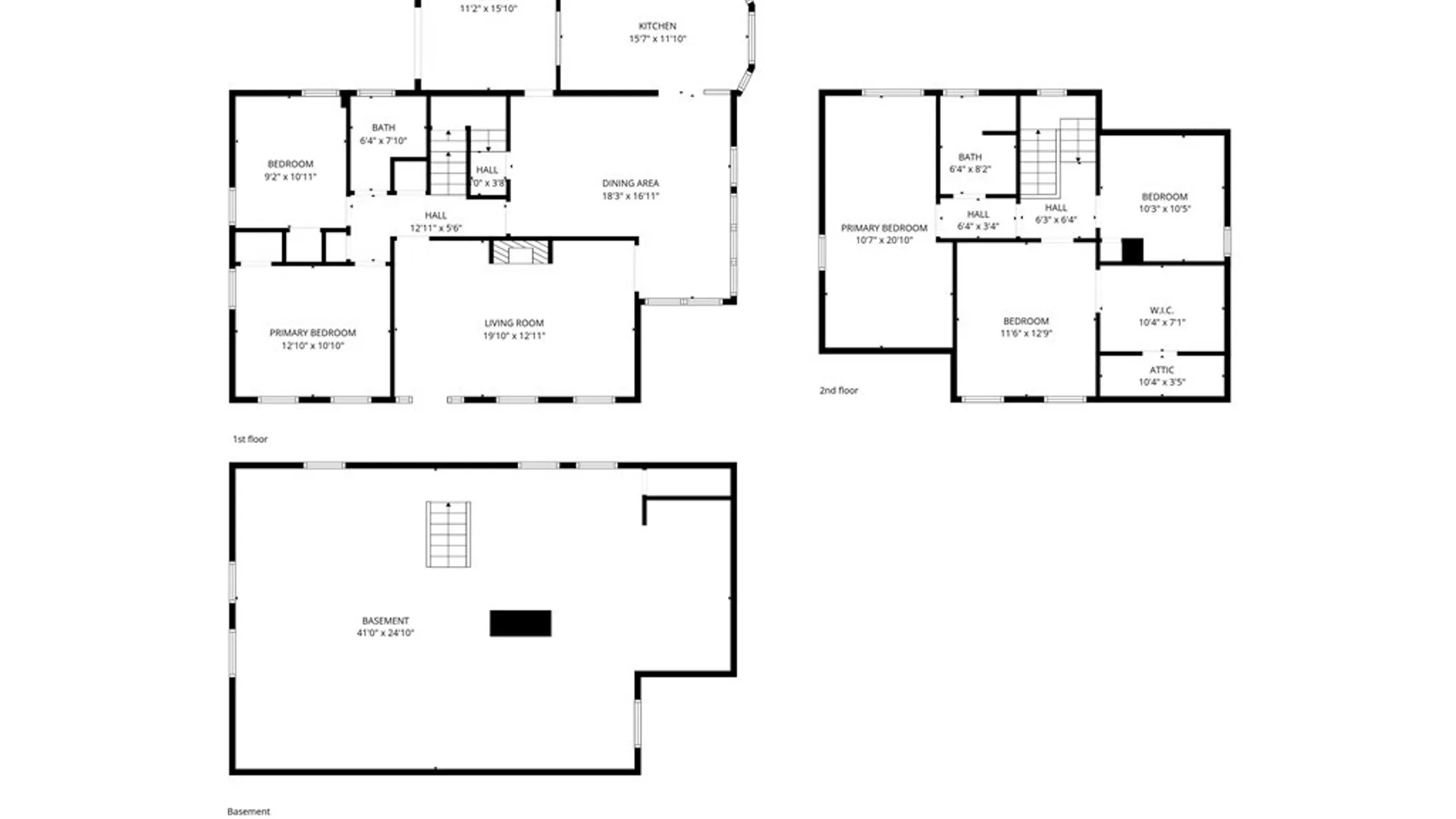
This is one of those locations that’s just easy to enjoy! 156 Garrison is located right in the Village of Williamsville and is close to everything you need. You can take a short 5-minute walk to Garrison Park or head down to Main Street for coffee, dinner, or a quick browse through the local shops, and everyday errands are only a short drive away. Inside, the home offers a comfortable amount of space with five bedrooms and two full bathrooms. The layout provides both formal and casual areas to use however you like, with a massive dining room for gatherings, a family room centered around a wood-burning fireplace, and a living room with access to the backyard. The eat-in kitchen features granite countertops, stainless steel appliances, and a beautiful bay window, bringing in tons of natural light. There are 2 bedrooms on the first floor and 3 bedrooms on the 2nd floor, with the primary bedroom boasting a large walk-in closet. Out back, the fully fenced yard provides plenty of room to relax or entertain, along with a detached two-car garage for added convenience. Overall, it’s a well-located home with a layout that simply works for everyday living! Join us at one of our open houses on Saturday, May 2nd from 11-1pm or Sunday, May 3rd from 11-1pm. Showings begin immediately and offers will be due on Tuesday, May 5th at 4pm. Don't miss out! The home has been professionally measured.
Est. Monthly Payment
$2,274.71
Private Mortgage Insurance
Not required
3:00 PM - 5:00 PM
Private Mortgage Insurance
You might also be interested in