Est. Monthly
$4,735/mo
151 Garfield Avenue, Hunter, NY
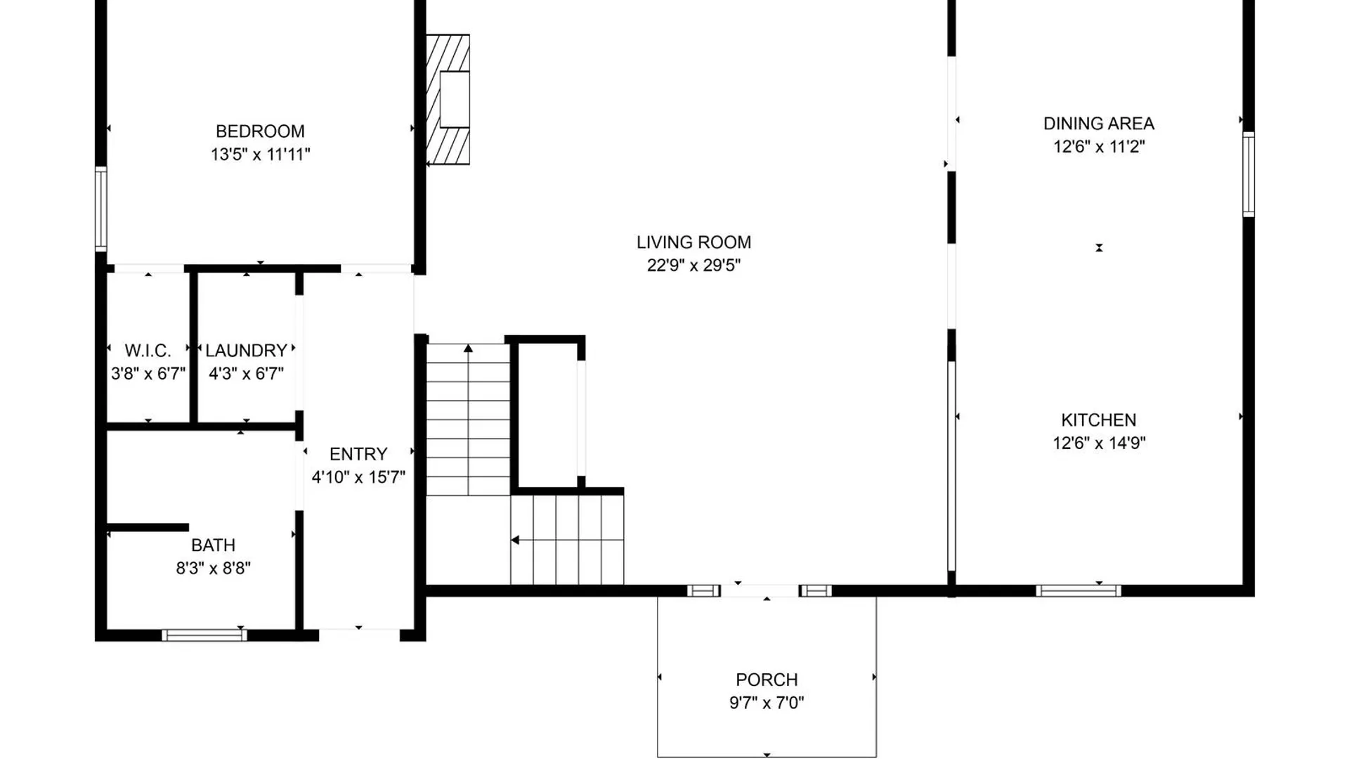
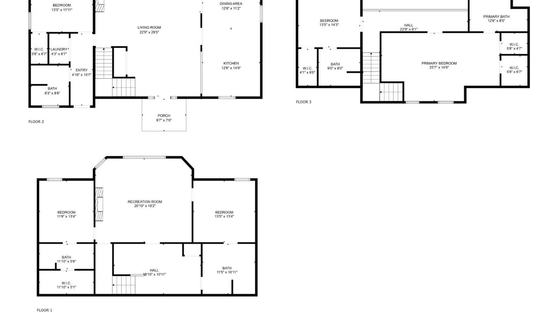
Spacious 5-Bedroom Mountain Retreat Minutes from Hunter Mountain Welcome to your perfect Hunter Mtn. escape! Located just minutes from Hunter Mountain and a short drive to Windham, this expansive 5-bedroom, 5-bath contemporary home blends modern comfort with rustic charm-ideal for full-time living, vacation getaways, or short-term rental income. Step through the covered front entrance into a bright, open-concept layout featuring a beautiful kitchen with brand-new appliances, granite countertops, and tile floors that flow into the dining area. The massive living room boasts vaulted ceilings, hardwood floors, and a wood-burning fireplace-perfect for cozy mountain nights. Featuring five large bedrooms, five bath, offering ultimate privacy for guests and family. The fully finished walkout lower level features a huge family room with a propane stove, and direct access to your private hot tub-ideal for unwinding after a day of skiing or hiking or just winding down & enjoying the sights & sounds of nature. Enjoy stunning southern exposure, mountain views, and plenty of space to relax on the oversized deck where you can enjoy you morning coffee/breakfast or outside dining/bbq's. Recessed lighting throughout, in-home laundry, Wi-Fi, and cable access provide all the modern conveniences. Surrounded by year-round outdoor adventure-skiing, snowboarding, snow tubing, hiking, fishing, and swimming-and close to village amenities like parks, the library, post office, and schools. Whether you're looking for an investment property or a mountain haven to call your own, this is a rare opportunity in the heart of the Northern Catskills. Come experience the ultimate Upstate escape
Est. Monthly Payment
$4,735.23
Private Mortgage Insurance
Not required
Private Mortgage Insurance
You might also be interested in our featured properties