Est. Monthly
$498/mo
109 Main Street, Albion, NY
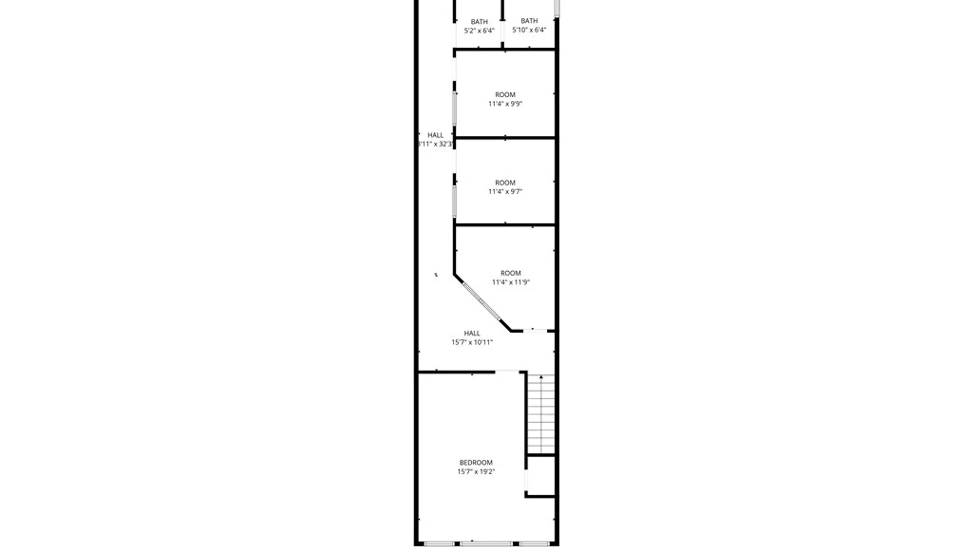
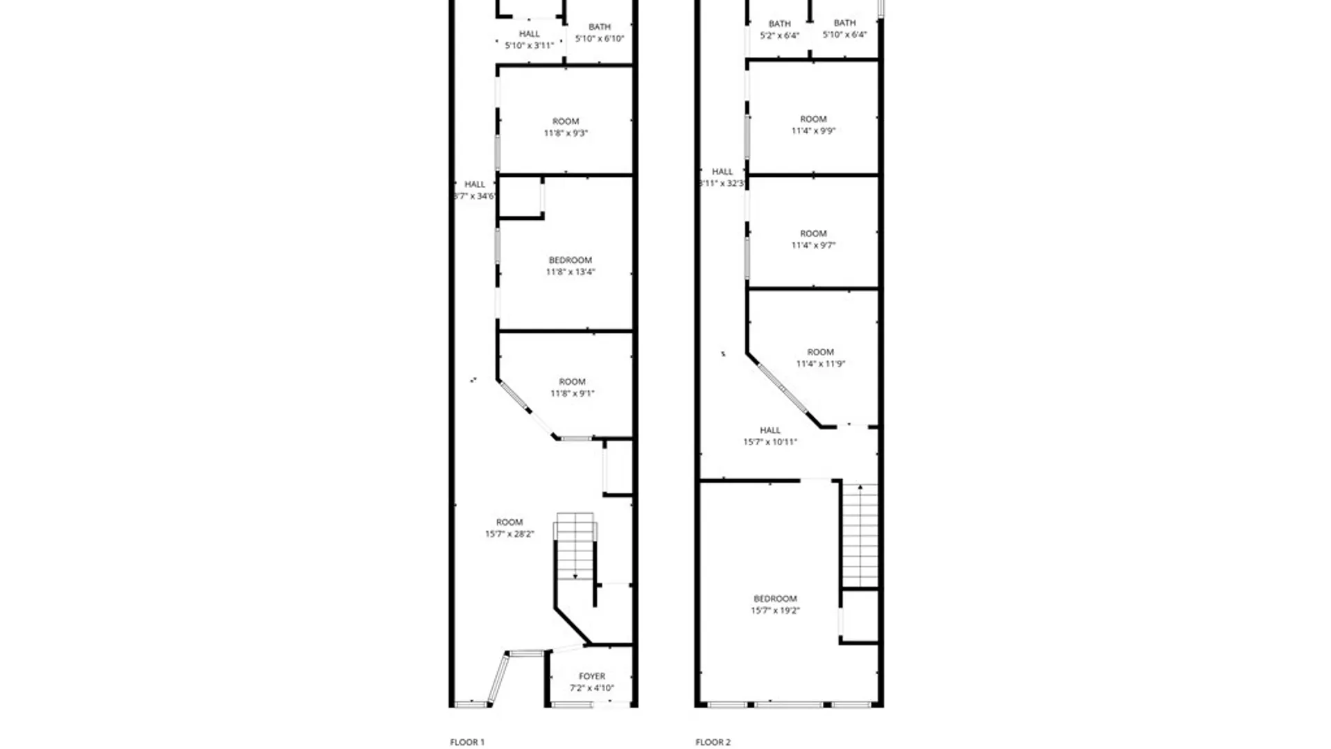
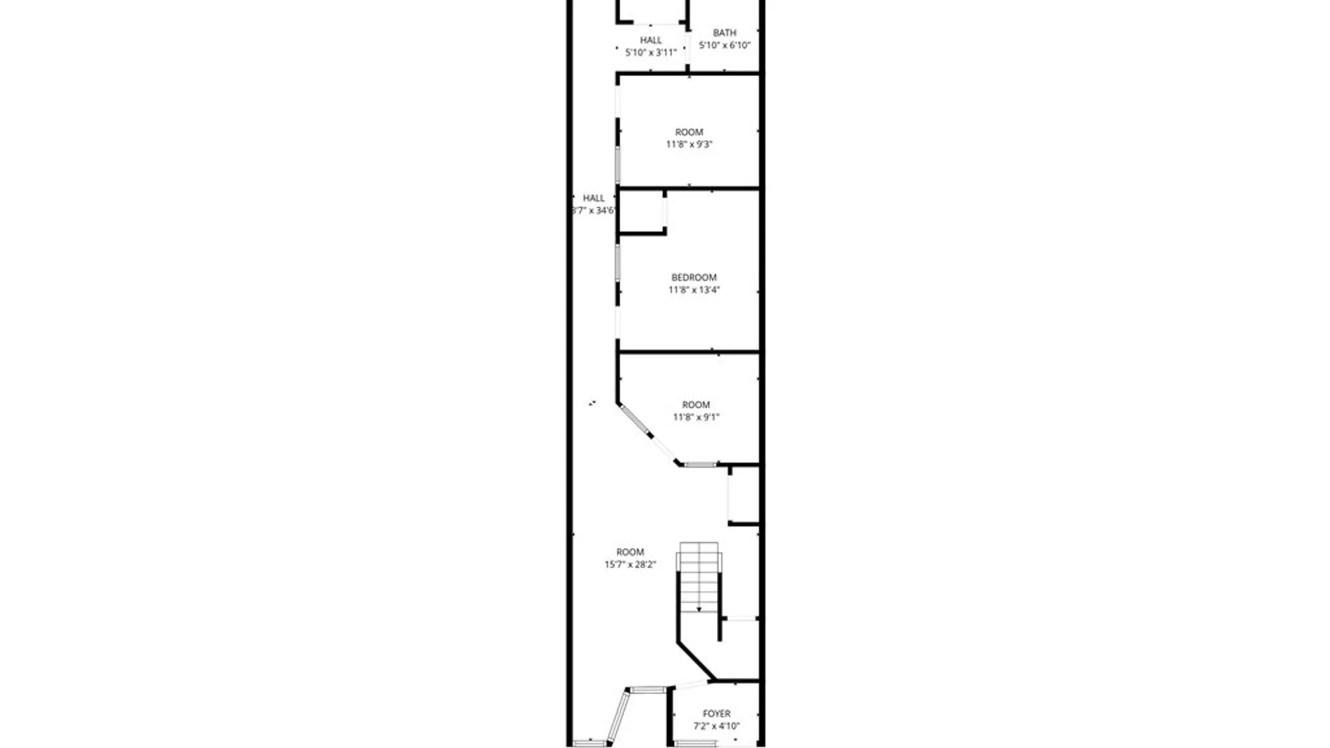
Step into a building that offers flexibility, character, and opportunity across two spacious office levels. The first floor is thoughtfully arranged with a welcoming entry area, multiple workspaces, and conveniently located half baths. Upstairs, the layout continues with additional offices, highlighted by a striking front room that captures natural light through an oversized window and provides an impressive view of downtown Albion. Architectural details, including a colorful stained-glass accent, give the space a distinctive personality. A compact kitchenette with sink and storage is tucked away on this level for added functionality. The attic above provides extra room for storage or future creative ideas. With access points and stairways at both the front and rear of the building, the property is well-suited for a range of configurations, including the potential for multiple independent business setups.
Est. Monthly Payment
$497.70
Private Mortgage Insurance
Not required
Private Mortgage Insurance
Handpicked listings that match what you're looking at