HOMESFARMSANDLAND
BuySell
    • Featured Properties
    • Property Showcases
    • Latest Blogs
      • Overview
      • Explore Open Houses
      • Discover Rental Living
      • Escape to Cabin Life
      • Unlock Multi-Family Living
      • Your Perfect Land Awaits
      • Embrace Farm Life
      • Overview
      • Find Rentals
      • Find Cabins
      • Browse Homes
      • Browse Farms
      • Browse Lands
    • Saved Properties
    • Overview
    • Buying Form
    • Buying Process
    • Mortgage Calculator
    • Overview
    • Selling Form
    • Selling Process
    • Free Home Evaluation
      • All of Otsego
      • Cooperstown
      • Oneonta
      • West Oneonta
      • Milford
      • Hartwick
      • Worcester
      • Unadilla
      • Laurens
      • Richfield Springs
      • All of Schoharie
      • Cobleskill
      • Middleburgh
      • Schoharie
      • Sharon Springs
      • Summit
      • Richmondville
      • Esperance
      • All of Chenango
      • Norwich
      • Oxford
      • Greene
      • Bainbridge
      • Sherburne
      • All of Delaware
      • Delhi
      • Stamford
      • Andes
      • Walton
      • Margaretville
      • Roxbury
      • Sidney
      • All of Greene
      • Catskill
      • Windham
      • Hunter
      • Cairo
      • Coxsackie
      • Athens
      • All of Broome
      • Binghamton
      • Vestal
      • Endicott
      • All of Oneida
      • New Hartford
      • Utica
      • Marcy
      • Clinton
      • All of Montgomery
      • Amsterdam
      • Fort Plain
      • Canajoharie
      • Fonda
      • All of Ulster
      • Kingston
      • New Paltz
      • Saugerties
      • Woodstock
      • Marlborough
    • Overview
    • Free Vendor List
    • Practical Guides
    • Need Funding?
    • Property Inspector
    • Down Payment Eligibility
    • Location Sharing?
      • Overview
      • Standard Operating Procedure
      • NYS Buyer-Seller
      • NYS Landlord-Tenant
      • Tenant Rights Notice
      • Fair Housing Notice
      • Privacy Policy
      • Location Services
      • Properties Preferences
      • Map Data Attribution
    • Who We Are
    • Meet the Team
Featured
Featured Properties
Property Showcases
Latest Blogs
Search
Advanced Search
Explore Open Houses
Discover Rental Living
Escape to Cabin Life
Unlock Multi-Family Living
Your Perfect Land Awaits
Embrace Farm Life
Search by Map
Find Rentals
Find Cabins
Browse Homes
Browse Farms
Browse Lands
Saved Properties
Buy
Buying Form
Buying Process
Mortgage Calculator
Sell
Selling Form
Selling Process
Free Home Evaluation
HOMESFARMSANDLAND
  • Otsego
  • Schoharie
  • Chenango
  • Delaware
  • Greene
  • Broome
  • Oneida
  • Montgomery
  • Ulster

Select a county to see cities

Resources
Free Vendor List
Practical Guides
Need Funding?
Property Inspector
Down Payment Eligibility
Location Sharing?
Disclosures
Standard Operating Procedure
NYS Buyer-Seller
NYS Landlord-Tenant
Tenant Rights Notice
Fair Housing Notice
Privacy Policy
Location Services
Properties Preferences
Map Data Attribution
About
Who We Are
Meet the Team

HOMESFARMSANDLAND.COM

Kevin Lucero

Lic Real Estate Salesperson

a Charlotteville Realty Team

Independently Owned & Operated

607-282-6242kevin@homesfarmsandland.com

Buying

  • Buying Form
  • Buying Process
  • Mortgage Calculator

Selling

  • Selling Form
  • Selling Process
  • Free Home Evaluation

Layout spacer

    Layout spacer

      About Us

      • Who We are
      • Meet the Team

      Resources

      • Latest Blogs
      • Free Vendor List
      • PracticalGuides
      • Need Funding?
      • Property Inspector
      • Down Payment Eligibility

      Communities

      • Otsego County
      • Schoharie County
      • Chenango County
      • Delaware County
      • Greene County
      • Broome County
      • Oneida County
      • Montgomery County
      • Ulster County

      Disclosures

      • Standard Operating Procedure
      • NYS Buyer-Seller
      • NYS Landlord-Tenant
      • Tenant Rights Notice
      • Fair Housing Notice
      • Privacy Policy
      • Location Services
      • Properties Preferences
      • Map Data Attribution

      © 2026 Homes, Farms & Land. All rights reserved.

      Property at 1084 Rt-12, Lebanon, NY 13332
      ACTIVE
      $200
      $548,700

      1084 Rt-12Lebanon, NY, 13332

      Unit • B3 Beds2 Baths1,568 SqFt9.32 Acres
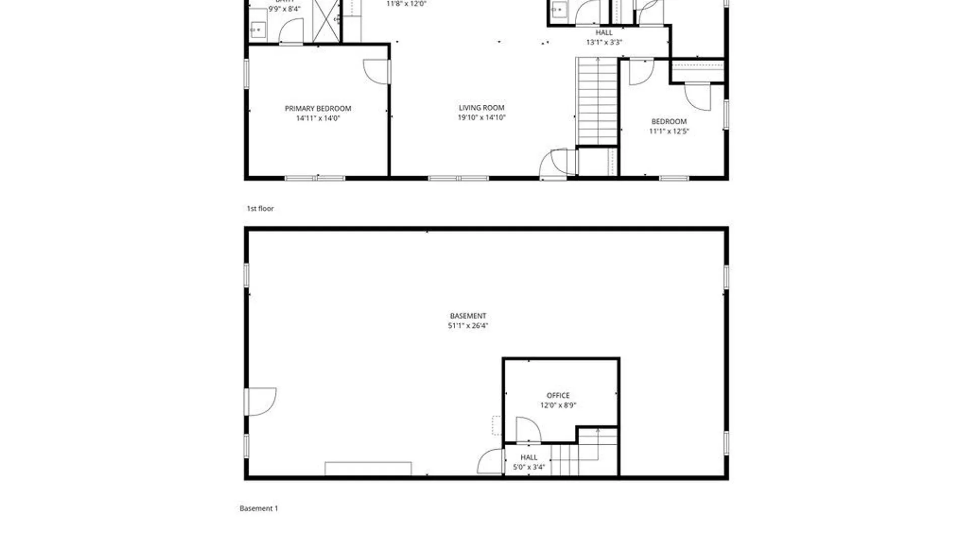
      Rare offering on NY-12B — a charming log cabin retreat nestled on just over 9 acres just minutes from Colgate University, premier local dining, shopping, and outdoor recreation. This lovingly crafted cabin blends rustic character with modern comfort, gleaming hickory hardwoods throughout, featuring exposed timber beams, natural wood finishes, and serene views of expansive wooded acreage. Spacious and versatile living areas, large owners ensuite plus 2 additional bedrooms, & full bathroom, open concept with high ceilings, finished room in basement could be office,and exterior walkout ICF basement is ready for finishing, great outdoor spaces perfect for relaxing by a fire in the evenings or entertaining guests. Whether you’re enjoying morning coffee on the deck surrounded by nature or cozying up inside after a day exploring Central New York, this property embodies peaceful country living with convenient access to Hamilton and the Colgate campus. Room to roam, hiking trails, gardening, or future expansion — a truly unique opportunity for year-round living, weekend getaway, or investment property. Don’t miss your chance to own this one-of-a-kind log cabin sanctuary in the heart of Madison County.
      1 / 47

      Est. Monthly

      $2,601/mo

      $548,700
      $200

      1084 Rt-12, Lebanon, NY

      Unit • B3 Beds2 Baths1,568 SqFt9.32 Acres

      Rare offering on NY-12B — a charming log cabin retreat nestled on just over 9 acres just minutes from Colgate University, premier local dining, shopping, and outdoor recreation. This lovingly crafted cabin blends rustic character with modern comfort, gleaming hickory hardwoods throughout, featuring exposed timber beams, natural wood finishes, and serene views of expansive wooded acreage. Spacious and versatile living areas, large owners ensuite plus 2 additional bedrooms, & full bathroom, open concept with high ceilings, finished room in basement could be office,and exterior walkout ICF basement is ready for finishing, great outdoor spaces perfect for relaxing by a fire in the evenings or entertaining guests. Whether you’re enjoying morning coffee on the deck surrounded by nature or cozying up inside after a day exploring Central New York, this property embodies peaceful country living with convenient access to Hamilton and the Colgate campus. Room to roam, hiking trails, gardening, or future expansion — a truly unique opportunity for year-round living, weekend getaway, or investment property. Don’t miss your chance to own this one-of-a-kind log cabin sanctuary in the heart of Madison County.

      StatusActive
      Property TypeResidential
      Property SubtypeSingle Family Residence
      Year Built2023
      Total Rooms9 rooms
      Days on Market126 days

      Est. Monthly Payment

      $2,600.82

      %
      %
      yr

      Private Mortgage Insurance

      Not required

      Affordability Checkoptional
      $

      Enter your annual income to check affordability

      Property Details

      Property Information

      1084 Rt-12

      Lebanon, NY 13332 • Madison
      3
      Beds
      2
      Baths
      1,568
      SqFt
      9.32
      Acres
      Status
      Active
      Property Type
      Residential
      Property Subtype
      Single Family Residence
      Year Built
      20233 years ago
      Total Rooms
      9 rooms
      Days on Market
      126 days
      Tax History
      Estimated values, may not reflect current amounts.
      • Annual Tax Amount
        $7,542
      Property History
      • Price reduced
        May 5, 2026 • NYSAMLS • S1657022
        $548,900 → $548,700
      • Listed for sale
        Jan 13, 2026 • NYSAMLS • S1657022
        $575,000
      Mortgage Calculator
      Estimated monthly payment for this property
      $2,600.82
      Down Payment
      Interest Rate
      Loan Term
      %
      %
      yearsyrs.
      Affordability Checkoptional
      $

      Enter your annual income to see if this home fits your budget

      Private Mortgage Insurance

      Not required — down payment above 20%
      MLS Information
      • Source
        NYSAMLS
      • MLS#
        S1657022
      • Listing Office
        Next Home CNY Realty
      • Last Updated
        13 days ago

      Appliances

      • Appliances
        • Dryer
        • Dishwasher
        • Gas Cooktop
        • Gas Oven
        • Gas Range
        • Microwave
        • Propane Water Heater
        • Refrigerator
        • Tankless Water Heater
        • Washer

      Climate & Systems

      • Heating
        • Propane
        • Electric
        • Hot Water

      Interior Features

      • Flooring
        • Hardwood
        • Tile
        • Varies
      • Basement
        • Full
        • Partially Finished
        • Walk Out Access
      • Windows
        Drapes
      • Interior Features
        • Ceiling Fans
        • Cathedral Ceilings
        • Eat In Kitchen
        • Separate Formal Living Room
        • Kitchen Island
        • Kitchen Family Room Combo
        • Living Dining Room
        • Solid Surface Counters
        • Natural Woodwork
        • Window Treatments
        • Main Level Primary
        • Programmable Thermostat

      Parking

      • Parking Features
        • No Garage
        • Driveway

      Lot & Grounds

      • Lot Size
        9.32 acres
      • Lot Features
        • Agricultural
        • Pie Shaped Lot
        • Wooded
      • Patio & Porch
        Deck
      • Exterior Features
        • Blacktop Driveway
        • Deck
        • Propane Tank Leased

      Type

      • Property Type
        Residential
      • Property Subtype
        Single Family Residence
      • Architectural Style
        • Cabin
        • Log Home

      Structure

      • Construction
        • Blown In Insulation
        • Log
        • Log Siding
        • Spray Foam Insulation
      • Roof
        Metal
      • Foundation
        Poured

      Condition

      • Year Built
        2023
      • Condition
        Resale
      • Days on Market
        126 days
      • Water
        Well
      • Sewer
        Septic Tank
      • Electric
        Circuit Breakers
      • Utilities
        • Electricity Available
        • High Speed Internet Available

      607-282-6242, (607) 282-6242, or +1 607 282 6242

      Kevin Lucero

      Kevin Lucero

      Lic. Real Estate Salesperson

      CallEmail
      Picked for you

      Similar Properties

      Handpicked listings that match what you're looking at

      View all →
      • 2820 Pinewood Circle, Corning, NY 14830ACTIVE$494,000

        2820 Pinewood Circle, Corning, NY 14830

        3 Beds2.5 Baths1,780 SqFt1 Acres

        LISTING BY FOUR SEASONS SOTHEBY'S INT'L

      • 3006 Mohawk Drive, Forestport, NY 13338ACTIVE$495,000

        3006 Mohawk Drive, Forestport, NY 13338

        3 Beds1.5 Baths1,400 SqFt4 Acres

        LISTING BY HERRON REALTY

      • 35799 State Highway 10, Hamden, NY 13782ACTIVE$495,000

        35799 State Highway 10, Hamden, NY 13782

        5 Beds4.5 Baths1,828 SqFt1 Acres

        LISTING BY COMPASS GREATER NY LLC

      • 216 Treehaven Drive, Aurora, NY 14052ACTIVE$495,000

        216 Treehaven Drive, Aurora, NY 14052

        3 Beds1.5 Baths1,796 SqFt0.5073 Acres

        LISTING BY MAYWALT REALTY GROUP

      • 720 Kennedy Road, Romulus, NY 14541ACTIVE$495,000OPEN 5/20

        720 Kennedy Road, Romulus, NY 14541

        3 Beds2 Baths1,693 SqFt3.17 Acres

        LISTING BY HOMECOIN.COM

      • 9333 Woodcrest Drive, Erwin, NY 14870ACTIVE$495,000

        9333 Woodcrest Drive, Erwin, NY 14870

        3 Beds3.5 Baths3,362 SqFt0.54 Acres

        LISTING BY SIGNATURE PROPERTIES

      • 3942 Pine Hill Road, Hornby, NY 14830ACTIVE$495,000

        3942 Pine Hill Road, Hornby, NY 14830

        4 Beds4 Baths3,200 SqFt8.25 Acres

        LISTING BY HOWARD HANNA CORNING

      • 10094 Powell Rd, Trenton, NY 13354ACTIVE$495,000

        10094 Powell Rd, Trenton, NY 13354

        5 Beds1.5 Baths3,450 SqFt1.51 Acres

        LISTING BY HOWARD HANNA CNY INC

      • 1336 Wemple Lane, Niskayuna, NY 12309ACTIVE$495,000

        1336 Wemple Lane, Niskayuna, NY 12309

        4 Beds3 Baths2,252 SqFt0.34 Acres

        LISTING BY BERKSHIRE HATHAWAY HOME SERVICES BLAKE

      • 4014 Belknap Hill Road, Jerusalem, NY 14418ACTIVE$495,000

        4014 Belknap Hill Road, Jerusalem, NY 14418

        5 Beds3.5 Baths4,377 SqFt5.63 Acres

        LISTING BY KEUKA LAKE & LAND REALTY